Skip to main content

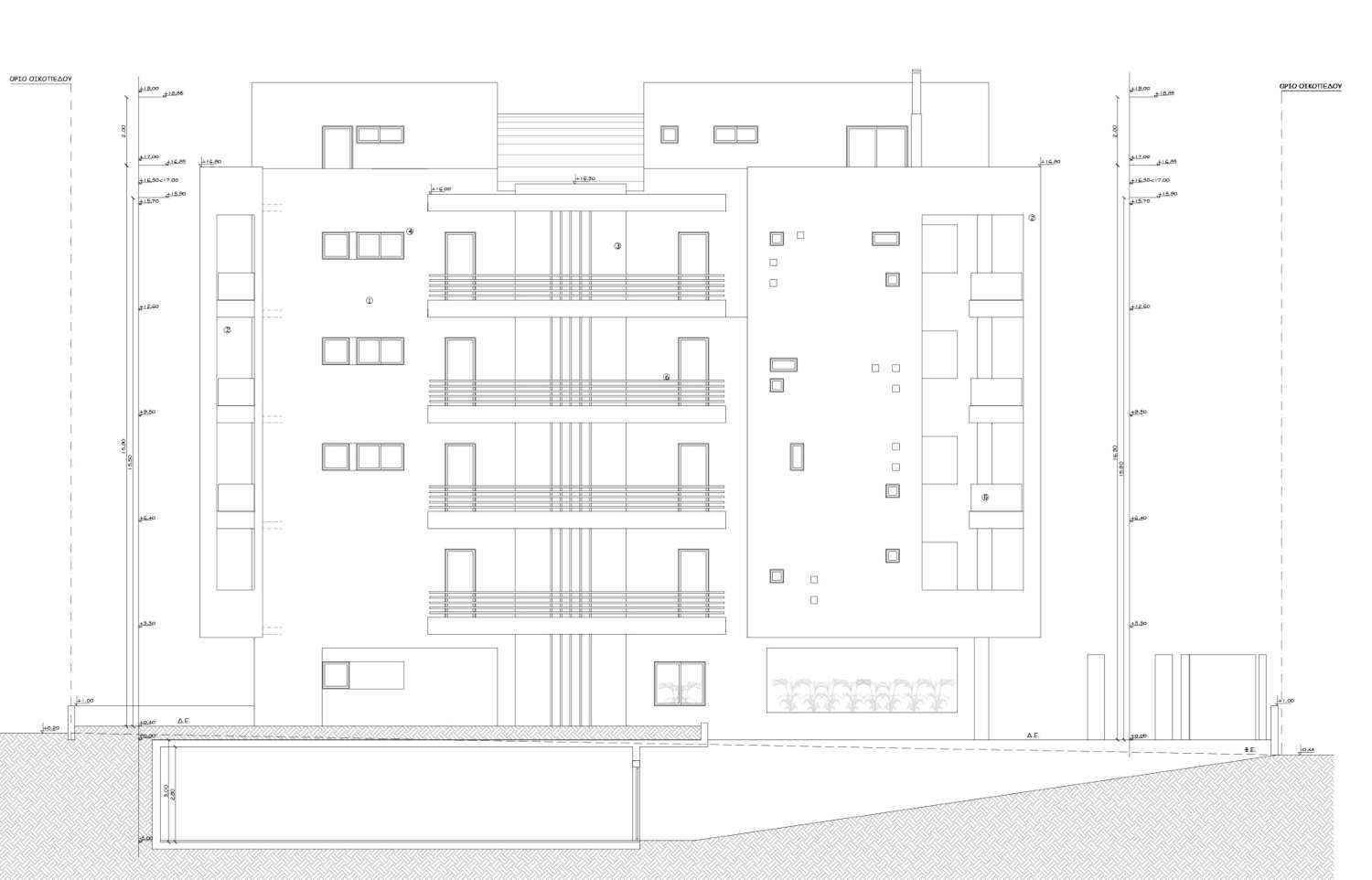
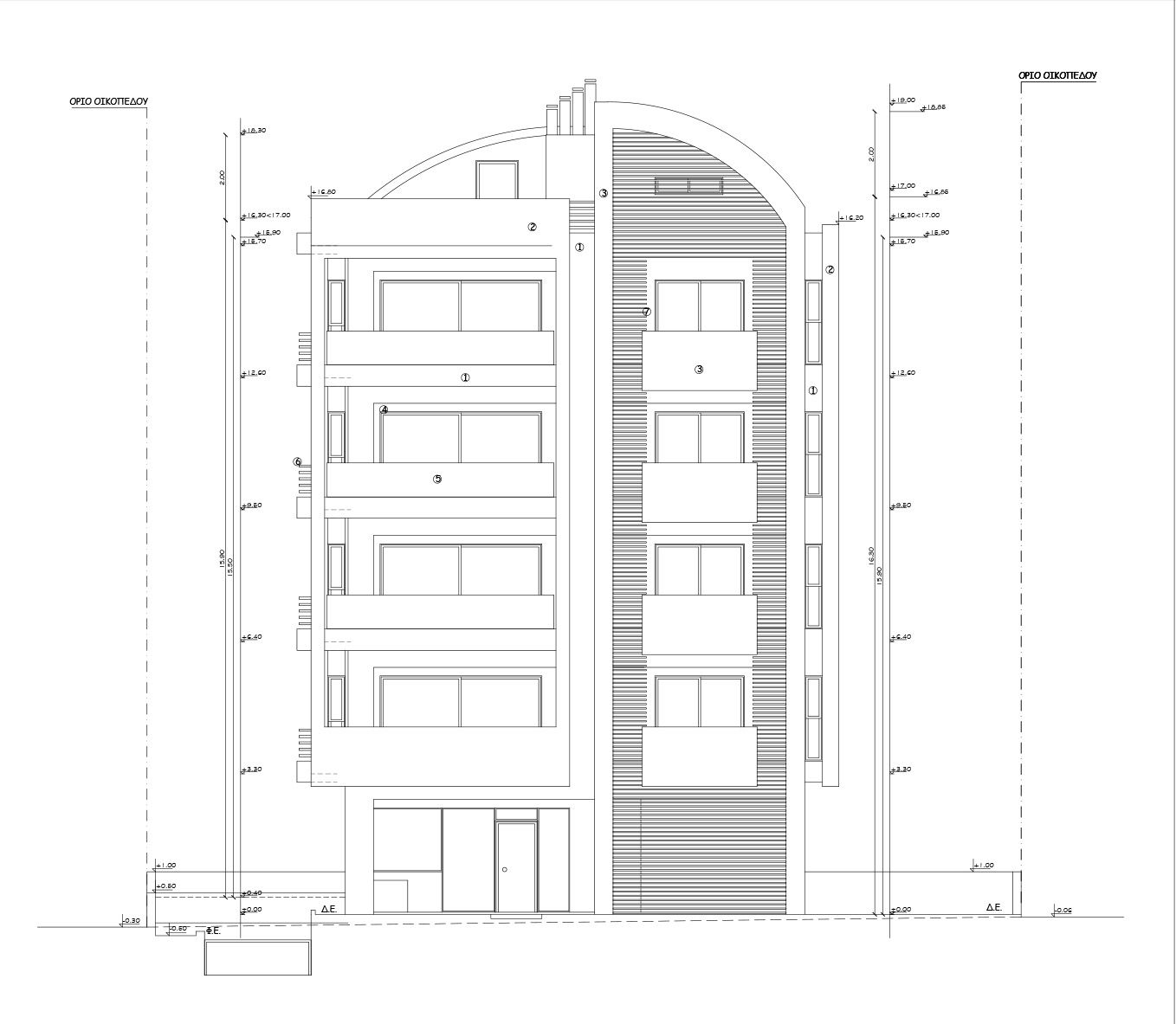
Πολυώροφο Κτήριο στα Βριλήσσια

Η Maconstruction είχε την μελέτη και την κατασκευή τετραώροφης πολυκατοικίας στα Βριλήσσια. Η έξυπνη σχεδίαση σε συνδυασμό με τις υψηλότατες προδιαγραφές κατασκευής, προσφέρουν διαμερίσματα ενεργειακής κλάσης Α, σύγχρονα, άνετα, με πρόσβαση ΑΜΕΑ, υψηλής αισθητικής και λειτουργικότητας.

  • ΕΤΟΣ:
    2014
  • ΚΑΤΗΓΟΡΙΑ:
    Πολυκατοικία
  • ΤΟΠΟΘΕΣΙΑ:
    Βριλήσσια

ΤΕΧΝΙΚΗ ΑΝΑΠΤΥΞΙΑΚΗ ΕΜΠΟΡΙΚΗ
ΑΝΩΝΥΜΗ ΕΤΑΙΡΙΑ
ΓΕΜΗ: 9252301000
ΑΦΜ: 998384640

Αναπαύσεως 43
Βριλήσσια
15235
Ελλάδα

+30 210 68 39 246
+30 211 41 13 510
Αυτή η διεύθυνση Email προστατεύεται από τους αυτοματισμούς αποστολέων ανεπιθύμητων μηνυμάτων. Χρειάζεται να ενεργοποιήσετε τη JavaScript για να μπορέσετε να τη δείτε.